WhatsApp AppelerVisites 7j/7
Indre 44610
À vendre — Vente directe sans intermediaire

Duplex atypique
entrée indépendante

Un appartement avec l'esprit d'une maison — terrasse, jardin privatif, garage box.

85
Surface
4
Pièces
3
Chambres
32
Terrasse
Prix de vente
270 000 €
Découvrir le bien
Le bien

Un appartement avec l'esprit d'une maison


Idéalement situé au cœur du village de Basse-Indre, face à l'église, cet appartement-maison de type 4 d'une surface de 85 m² bénéficie d'une proximité immédiate avec les commerces, son marché dominical, les écoles, les transports en commun (lignes 50 et 81), Nantes accessible en 15 minutes en voiture et le Bac de Loire.


Dans une résidence calme et bien entretenue, l'accès se fait par une entrée indépendante. Le rez-de-chaussée se compose d'un hall avec placards, WC, une cuisine aménagée et un salon-séjour ouvert sur une terrasse-jardin arborée de 32 m², exposée Ouest.`


À l'étage : un dégagement dessert trois chambres et une salle d'eau avec WC.


Un garage fermé en sous-sol de 18 m² ainsi qu'une cave complètent l'ensemble. Garage prêt pour borne de recharge électrique (copropriété précâblée).


Son atout : exposition Ouest de la pièce de vie avec accès direct à la terrasse-jardin.

 


Entrée privative, jardin clos, garage — la liberté d'une maison dans une copropriété soignée.

Distribution

Plan des niveaux

0
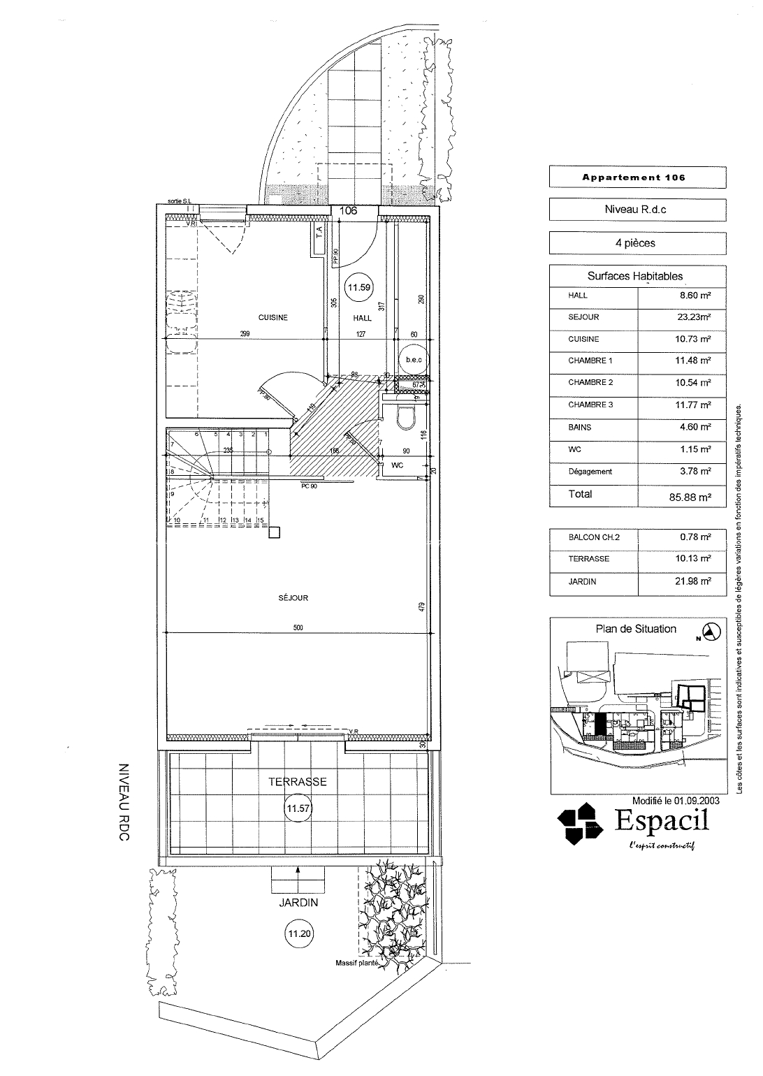
Rez-de-chaussée
Entrée indépendante avec placard
Cuisine aménagée
Salon et séjour
Terrasse et jardin privatif 32 m²
Plan Rez-de-chaussée
1
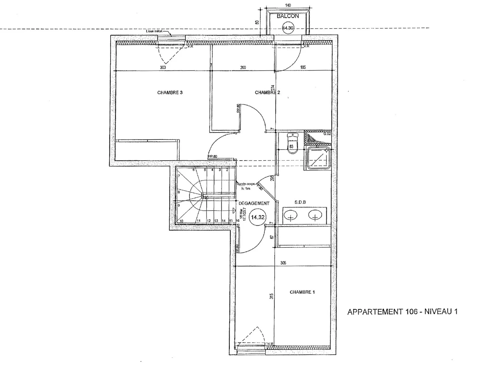
Étage 1
Chambre 1 avec placard
Chambre 2 avec balcon
Chambre 3
Salle d'eau et WC
Plan Étage 1
+
Annexes
Garage box 20 m² (prêt pour l'installation d'une borne éléctrique) 
Cave
Visite virtuelle

Photos du bien

Séjour · Salon
Séjour · Salon
Entrée
Entrée
Séjour · Salon
Séjour · Salon
Séjour · Salon
Séjour · Salon
Cuisine
Cuisine
Cuisine
Cuisine
Chambre
Chambre
Chambre · Bureau
Chambre · Bureau
Chambre
Chambre
Terrasse · Jardin
Terrasse · Jardin
Terrasse · Jardin
Terrasse · Jardin
Pourquoi ce bien

Les atouts qui font la différence

🚪
Entrée indépendante
Accès direct — intimité totale
🌿
Jardin privatif 32 m²
Terrasse et jardin clos accès depuis le séjour.
🏠
Duplex en RDC
85 m² sur deux niveaux
🚗
Garage box 20 m² et cave
Garage fermé — voiture, vélos, stockage.
DPE Classe C
Bonne performance énergétique.
🏘️
Copropriété 26 lots
Charges raisonnables, résidence calme.
Contact

Prenez rendez-vous

Vente directe particulier à particulier — Visites 7j/7.

Propriétaire vendeur
Vente directe · Sans intermédiaire
Disponible 7j/7
Envoyer un message
Au moins un des deux est obligatoire

Appartement Duplex 86m² · Indre 44610

Défiler
Pincez pour zoomer · Glissez pour naviguer